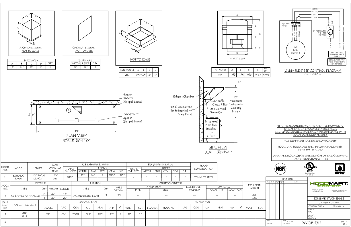
Concession Trailer Exhaust Only Vent Hood w/ Fan & Curb Included
- 10' x 30" Concession Hood
- 4" Front 18" Back
- (1x) Exhaust Fan
- (1x) Mounting Curb Concession Style 2" High
- Stainless Steel Filters
- Pre-Wired Light(s) (Sent Loose or Installed) Must Specify
- Stainless Grease Cup(s)
- Hanging Brackets (Sent Loose or Installed) Must Specify
- Side curtains
- Install Bolt Kit Sold Separately
See concession trailer canopy hood spec sheet
If you cook in a concession trailer or food truck, you know your vehicle will require concession hoods that comply with the local code of each state in which you operate. Let us help you find the right hood for your needs. We carry a variety of sizes of concession hoods that are all NSF, UL, NFPA and ETL approved. The concession trailer hoods come with smooth top allowing for maximum clearance when mounting in your trailer. (hanging brackets or lights can be included at no additional charge, when requested)
Stainless steel concession trailer exhaust hoods ship in 5 business days. *Custom Hoods can also be made to your specifications, with Quick Delivery!
All Concession Trailer Hoods Include:
- Filters and Stainless Grease Cup
- Direct Drive Exhaust Fan: UL 762 / 115V Single Phase MADE in USA
- Mounting Curb for Exhaust Fan - 2" High Concession Curb
- 12" Length of Ductwork 1pc
- Curb Plate 1pc
- Variable Speed Control
- Side curtains 12" x 9" x 0"
Hood Package General Specifications
- Constructed of 430 18 Gauge Stainless Steel
- All joints are welded liquid tight, without seams by an automatic mig welder
- Made in USA
- Hoods are built in accordance with NFPA 96, NSF specifications, and U.L. 710
- Grease trough is made to receive grease extracted by the filters
- Grease filters are 20” Stainless Steel baffle type, carry a U.L.
- Each grease trough is equipped with a stainless steel cup
- *Note: Factory does not cut holes in hood
- 2 Year Warranty
Hood System Overview
Our Type 1 Concession/Food Truck Hoods is designed for use over cooking equipment to remove heat, smoke and grease laden vapors. Constructed of 18 Gauge 430 Stainless Steel with Stainless Steel Filters. Exhaust fan includes variable speed control and low profile mounting curb.
HoodMart® Systems GUARANTEED to Pass ALL State & Local codes.
All HoodMart® Commercial Exhaust Hood Systems are constructed from Heavy Gauge Steel, built to NSF & NFPA 96 Standards, ETL Listed & comply with UL710 Hood Standards.
LET US HELP YOU

How Can We Help You?
What Type of Hood Do You Need?

Experts Are Ready to Help You:
Custom Size Hoods
Ship in 5-7 Business Days.
HoodMart Concession Trailer Hood System 10' x 30"
Orig.Price $3,122.69 Your Price $2,872.87
Concession Trailer Exhaust Only Vent Hood w/ Fan & Curb Included
- 10' x 30" Concession Hood
- 4" Front 18" Back
- (1x) Exhaust Fan
- (1x) Mounting Curb Concession Style 2" High
- Stainless Steel Filters
- Pre-Wired Light(s) (Sent Loose or Installed) Must Specify
- Stainless Grease Cup(s)
- Hanging Brackets (Sent Loose or Installed) Must Specify
- Side curtains
- Install Bolt Kit Sold Separately
See concession trailer canopy hood spec sheet
If you cook in a concession trailer or food truck, you know your vehicle will require concession hoods that comply with the local code of each state in which you operate. Let us help you find the right hood for your needs. We carry a variety of sizes of concession hoods that are all NSF, UL, NFPA and ETL approved. The concession trailer hoods come with smooth top allowing for maximum clearance when mounting in your trailer. (hanging brackets or lights can be included at no additional charge, when requested)
Stainless steel concession trailer exhaust hoods ship in 5 business days. *Custom Hoods can also be made to your specifications, with Quick Delivery!
All Concession Trailer Hoods Include:
- Filters and Stainless Grease Cup
- Direct Drive Exhaust Fan: UL 762 / 115V Single Phase MADE in USA
- Mounting Curb for Exhaust Fan - 2" High Concession Curb
- 12" Length of Ductwork 1pc
- Curb Plate 1pc
- Variable Speed Control
- Side curtains 12" x 9" x 0"
Hood Package General Specifications
- Constructed of 430 18 Gauge Stainless Steel
- All joints are welded liquid tight, without seams by an automatic mig welder
- Made in USA
- Hoods are built in accordance with NFPA 96, NSF specifications, and U.L. 710
- Grease trough is made to receive grease extracted by the filters
- Grease filters are 20” Stainless Steel baffle type, carry a U.L.
- Each grease trough is equipped with a stainless steel cup
- *Note: Factory does not cut holes in hood
- 2 Year Warranty
Hood System Overview
Our Type 1 Concession/Food Truck Hoods is designed for use over cooking equipment to remove heat, smoke and grease laden vapors. Constructed of 18 Gauge 430 Stainless Steel with Stainless Steel Filters. Exhaust fan includes variable speed control and low profile mounting curb.
HoodMart® Systems GUARANTEED to Pass ALL State & Local codes.
All HoodMart® Commercial Exhaust Hood Systems are constructed from Heavy Gauge Steel, built to NSF & NFPA 96 Standards, ETL Listed & comply with UL710 Hood Standards.


















CUSTOM FABRICATOR

















